
Dom w konstrukcji szkieletowej to idealna inwestycja dla osób ceniących sobie szybką realizację i niskie koszty budowy. Dodatkową zaletą jest energooszczędność i ekologiczność budynku, który zapewni Tobie wygodę i komfort użytkowania w niższych cenach utrzymania!
Dom budowany jest w systemie lekkiego szkieletu stalowego z profili zimno giętych, przy użyciu specjalnej stali galwanizowanej. Jest to budynek parterowy, niepodpiwniczony, posadowiony na betonowych ścianach i ławach fundamentowych.
Dom w całości ocieplony styropianem, z zamontowanym oświetleniem. Wybudowany w technologii lekkiej szkieletowej ze stali i wykończony wysokiej jakości materiałami. Nowoczesna architektura, która jednocześnie nawiązuje do lokalnego budownictwa, wpisując obiekt w kontekst miejsca. Tak zaprojektowana inwestycja w sposób swobodny odzwierciedla zawartą funkcję mieszkalną.
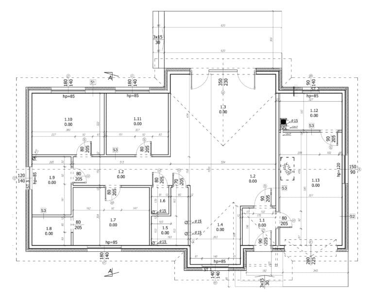
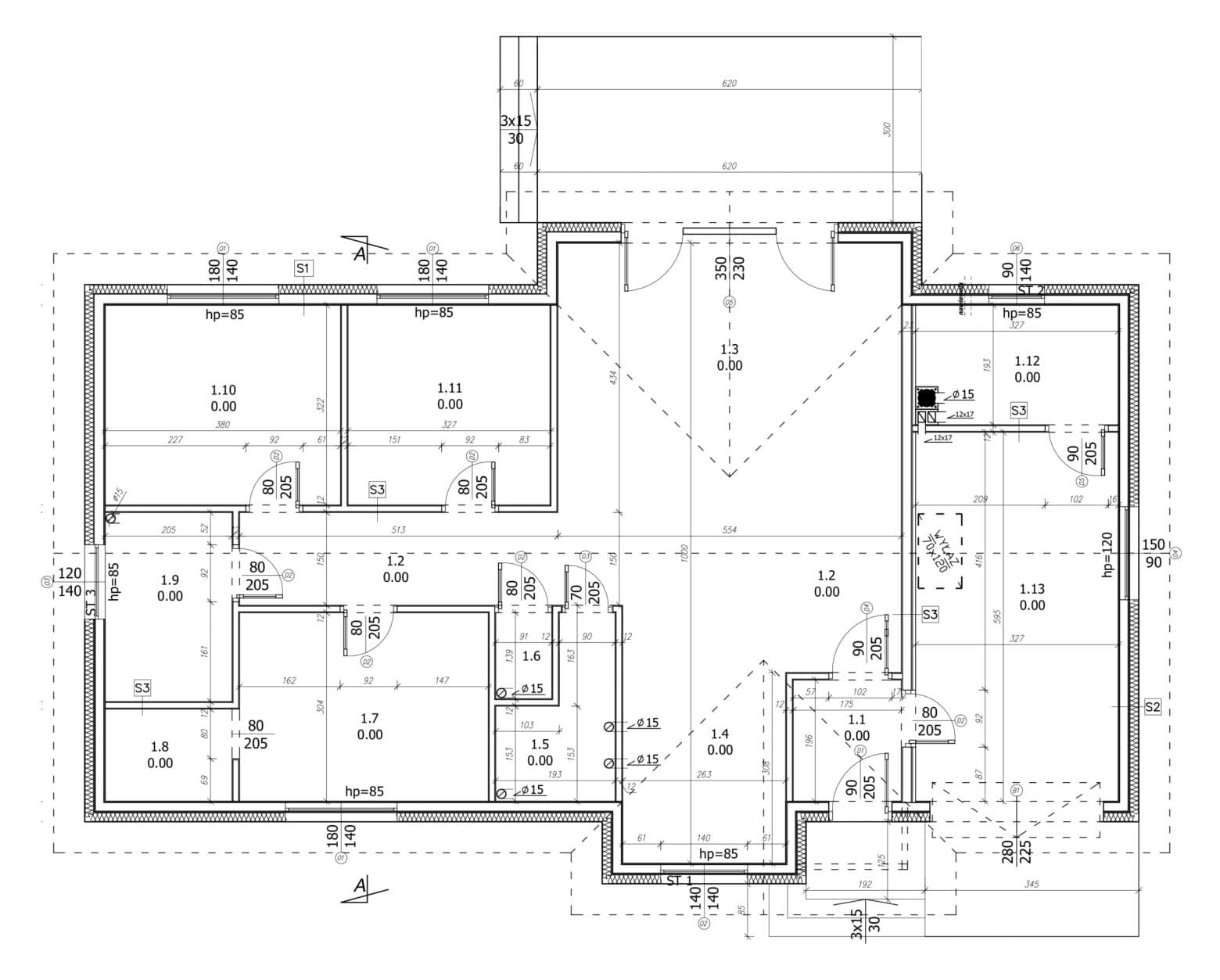
Układ budynku zachwyca dużymi pomieszczeniami, z jednoczesnym zachowaniem funkcjonalności i komfortu użytkowania. Wchodząc do domu przez wiatrołap, przechodzimy do otwartej panoramicznej kuchni i przestronnego salonu z wyjściem na taras. Po lewej stronie znajduje się szeroki korytarz prowadzący do trzech sypialni z dużą łazienką i garderobą. Zaprojektowana została również dodatkowa toaleta dla gości oraz pojemna spiżarnia na produkty spożywcze. Po drugiej stronie budynku zlokalizowany jest wjazd do przestronnego garażu i wejście do kotłowni. Budynek posiada poddasze, które można dodatkowo wykorzystać i zaadaptować!
Wewnętrzna część budynku wyposażona jest w wylewki, tynk systemowy wraz ze wszystkimi instalacjami wewnętrznymi. Wszystkie pomieszczenia posiadają gotowe ogrzewanie podłogowe. Przygotowany jest również pod montaż fotowoltaiki, na życzenie klienta. Wszystkie instalacje są gotowe do przyłączenia ze sprzętem białego montażu. Zastosowano nowoczesną stolarkę okienną (okna 6-komorowe 3-szybowe), drzwi tarasowe przesuwne oraz drzwi wejściowe antywłamaniowe z dwoma zamkami.
Zobacz kartęBudynek posiada garaż w bryle budynku, wybrukowany podjazd z dwoma miejscami postojowymi i duży ogród z tarasem. Wejście i wjazd na działkę znajduje się od strony południowej, gdzie dojazd zapewnia istniejąca droga gminna. Na teren osiedla można dotrzeć aż z czterech stron – asfaltowa droga, chodniki spacerowe wraz z oświetleniem i zatoczką parkingową.
Nieruchomość znajduje się w pięknej i spokojnej okolicy ze wspaniałym widokiem na Tatry i Beskid Sądecki. Inwestycja z dala od zgiełku miasta, a jednocześnie blisko potrzebnych punktów usługowych; tj.: szkoły, urzędy, kościoły, apteki, sklepy, restauracje czy banki. Osiedle bezpieczne i dobrze skomunikowane – możliwość wjazdu na teren z czterech stron. Przebudowane utwardzone drogi, ścieżki rowerowe i chodniki; zamontowane nowe latarnie uliczne.
Budynek oddawany w stanie deweloperskim o wysokim standardzie.
Nieruchomość posiada również własną księgę wieczystą. Kompleksowo zabezpieczamy kredytowanie naszym klientom na miejscu, na bardzo korzystnych warunkach. Mieszkając w gminie Chełmiec płacą Państwo o wiele niższe opłaty od mediów i podatki od nieruchomości – kupujący zwolniony z podatku 2% PCC.